Diskussionsbedarf über Projekte im Gemeindewald

Einmal im Jahr erhalten die Gemeinderäte einen praxisbezogenen Einblick in ihren rund 1.000 Hektar großen Gemeindewald. Sowohl der aktuelle Zustand wie auch Erlössituation und geplante Projekte füllten die rund vier Stunden dauernde Exkursion in verschiedenen Abteilungen des Distrikts 2 (Regeleskopf) und Distrikts 3 (Brandenkopf) aus.
Erneute Rotstift-Runde für den Rathausvorplatz

Der Gemeinderat hat am Montag den Plan zur Neugestaltung des Rathausvorplatzes abgesegnet. Es ging nicht ohne »kill your darlings«. So schön ein Küchencontainer für Festbewirtung und eigene Gastro-Schirme gewesen wären, so stark hätten diese Nett-zu-haben-Posten die Kalkulation strapaziert. Sie beläuft sich auch so alles in allem auf rund 590.000 Euro.
Grabformen sollen noch vielfältiger werden

Die Gemeinde Oberharmersbach trägt der sich verändernden Trauerkultur Rechnung und erweitert ihr Grabstättenangebot. Bald kann man sich auf dem Friedhof auch in einem gärtnerisch gepflegten Grabfeld beerdigen lassen. Nahe dem Brandenkopf entsteht außerdem ein Ruhewald. Die Nach frage nach anderen Grabformen als den traditionellen steigt.
Tiefbau Schöpf baut Planstraße 3
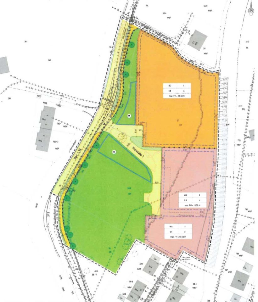
Der Gemeinderat hat die Erschließungsarbeiten zum Baugebiet »Elme IV«, Planstraße 3 einstimmig vergeben. Wirtschaftlichster Bieter mit einer moderaten Abweichung im Vergleich zur Kostenschätzung von vor einigen Monaten war Tiefbau Schöpf.
54 Cent pro Kilowattstunde
Aus der Kündigung des Stromliefervertrags mit der Gemeinde Oberharmersbach seitens des E-Werk Mittelbaden entstehen für den Stromabnehmer erhebliche Nachteile. Der Preis steigt von 7,1 bis 7,9 Cent pro Kilowattstunde jetzt auf 54 Cent pro Kilowattstunde im nächsten Jahr.
Preise für das Mittagessen in Grundschule und Kindergarten steigen
Die Preise steigen. Auch in der Grundschule und im Kindergarten Oberharmersbach. Der Caterer hat angekündigt, dass er aufgrund deutlich gestiegener Kosten ab dem 1. Oktober 2022 den Preis pro Essen um 30 Cent erhöhen muss.
Glasfaserausbau kommt ins Stocken

Die Baufirma Ezentis Deutschland, die im Auftrag von »Unsere Grüne Glasfaser« das Glasfasernetz ausbaut, ist zahlungsunfähig und musste vor drei Wochen Insolvenz anmelden. Betroffen sind sowohl die Gemeinde Oberharmersbach, die Stadt Zell und weitere Gemeinden in der Ortenau, in denen UGG aktiv ist. Aktuell ruhen die Arbeiten. Die UGG versichert, dass der Ausbau des Glasfasernetzwerks […]
Bürger an Windkraft beteiligen
Gleich zwei Energiethemen hat der Gemeinderat in seiner letzten Sitzung vor der Sommerpause diskutiert. Einmal ging es um Windkraft, das andere Mal um Energie aus Sonnenlicht.
Neuigkeiten zur Kilwi
Die neu gegründete Kilwi Gbr hat nun auch förmlich den Auftrag bekommen, die Oberharmersbacher Kilwi zu bewirtschaften. Einen entsprechenden Antrag nahm der Gemeinderat in seiner Sitzung am Montag einstimmig an.
Damit aus richtig schlecht endlich gut wird
Viele der Straßen in Oberharmersbach sind in einem schlechten Zustand. Stück für Stück sollen sie saniert werden. In seiner Sitzung am Montag beauftragte der Gemeinderat den nächsten Abschnitt.
Haushalt ist auf Kurs mit positiver Tendenz

In finanzieller Hinsicht läuft das Jahr für die Gemeinde Oberharmersbach bisher besser als geplant. Unterm Strich ist der Haushalt zwar immer noch in den roten Zahlen. Doch so tiefrot, wie sie einmal waren, sind sie längst nicht mehr. Statt rund 300.000 Euro Defizit steht die Gemeinde aktuell bei etwas mehr als 140.000 Euro, sollte sich […]
E-Werk zieht Reißleine
Schlechte Nachrichten für die Oberharmersbacher Gemeindekasse: Das E-Werk Mittelbaden hat den bestehenden Stromlieferungsvertrag gekündigt.
Steigende Kosten schlagen sich auf Kindergarten-Beiträge nieder
Die Elternbeiträge steigen für das Kindergartenjahr 2022/2023 um drei Prozent. Der Betrag wird kaufmännisch abgerundet. Gründe für die Beitragserhöhung gibt es viele: gestiegene Beschaffungskosten in allen Bereichen, eine hohe Gehaltsrunde für Fachkräfte in Kindertages einrichtungen und so weiter und so fort. Die kommunalen Spitzenverbände hatten sogar eine Erhöhung um 3,9 Prozent vorgeschlagen.
Bebauungsplan »Ballmatte« ist verabschiedet

Der Gemeinderat hat in seiner Sitzung am Montag den Bebauungsplan »Ballmatte« verabschiedet. Die Ansiedelung eines Penny-Markts, das Senioren-Wohnen und neue Bauplätze rücken damit ein Stück näher. Nicht alle Gemeinderäte sind mit dem Plan einverstanden. Clarissa Lehmann enthielt sich bei der Abstimmung, weil die schlechte Verkehrssituation in der angrenzenden Hagenbach-Straße mit diesem Plan ungelöst bleibt.
Fenster sind aktuell zu teuer
An der Brandenkopfschule steht für einen Teil des Flachdachs eine Sanierung an. Aus dem Austausch der darunterliegenden Fenster wird vorerst nichts. Weil die Kosten explodieren, hat der Gemeinderat in seiner Sitzung am Montag die Fenster-Ausschreibung aufgehoben.
Eintrittspreise ins Schwimmbad werden nur moderat erhöht
Gute Nachrichten für alle Freibad-Fans: Zur Saison 2022 hat die Gemeinde Oberharmersbach genug Personal, um wieder im vollen Umfang aufzumachen. Allerdings kostet mehr Personal mehr Geld. Außerdem muss neue Mess- und Regeltechnik im Wert von fast 20.000 Euro her. Die Frage im Gemeinderat war weniger ob, als vielmehr wie viel der Eintritt ins Schwimmbad teurer […]
Schlagabtausch im Gemeinderat
Die Emotionen sind ungewöhnlich hochgekocht, in der Bürgerfrageviertelstunde der Gemeinderatssitzung am Montag. Stein des Anstoßes waren die Gerüchte über den Bau eines Campingplatzes im Obertal. Die Anwohner forderten von Bürgermeister Weith ein Statement zur Angelegenheit, obwohl das Projekt »Ferienhäuser« längst vom Tisch ist.
Der Plan für die »Ballmatte« steht

Wie wird der südliche Teil der »Ballmatte« bebaut und welche Konsequenzen hat das für den Bebauungsplan? Das diskutierte der Gemeinderat gestern Abend. Es ging um Geschosszahlen, Dachformen, Parkflächen, die Zahl möglicher Grundstücke und den Straßenverlauf.
So lief die letzte Sitzung in der Reichstalhalle
Am Montag hat der Gemeinderat einen Bebauungsplan auf den Weg gebracht, sich um eine Brücke gekümmert, die Gebühren für die Grillstelle Riersbach angepasst und den Jahresabschluss 2020 des Eigenbetriebs Wasserwirtschaft zur Kenntnis genommen. Mit nicht mal einer Stunde Länge war die öffentliche Sitzung sehr kurz für Oberharmersbacher Verhältnisse. Und es war wahrscheinlich – erst einmal […]
Oberharmersbachs Sparkurs zahlt sich aus

Gute Nachrichten hat Bürgermeister Richard Weith am Montag mit zur Haushaltsberatung in den Gemeinderat gebracht. Die Strategie der kleinen Schritte zur Haushaltssanierung scheint zu wirken. Die Finanzen, dargelegt auf fast 250 Seiten Haushaltsplanung, kommen in ruhigeres Fahrwasser. Nach altem Recht wäre der vorgelegte Haushaltsentwurf 2022 nach Jahren hoher Schuldenaufnahme sogar endlich wieder ausgeglichen.
Alle Extras sind gestrichen

Der Gemeinderat hat die Wunschliste für den zu gestaltenden Rathausplatz deutlich abgespeckt und will bald einen neuen Vertrag mit dem Büro »gla« schließen. Dessen Inhaber Volker Stauch stellte in der Sitzung am Montag einen gestrafften Planentwurf samt Kostenschätzung vor. Doch selbst der strapaziert das Budget mehr als er eigentlich dürfte.
Beschränkung für die »Ballmatte«

Die Vorstellung des Vorentwurfs zum Bebauungsplan »Ballmatte« sorgte am Montag im Gemeinderat für enttäuschte Gesichter. Am Ortseingang kann zwar ein neuer Lebensmittelmarkt gebaut werden. Mehr Einzelhandel darf sich aber nicht ansiedeln. Der Regionalplan unterstellt für ein solches Unterfangen die »Unverträglichkeit auf den Einzelhandel des regionalen Umfelds«. An dieser Einschätzung war auch nach vielen Diskussionen mit […]
Zwölf neue Bauplätze für Oberharmersbach
Die Nachfrage nach Bauplätzen in Oberharmersbach ist riesig. Das hat eine Umfrage unter Oberharmersbacher Bürgern im letzten Jahr ergeben. 38 Haushalte konnten sich vorstellen, in ihrer Heimatgemeinde ein Wohnhaus zu bauen. Am liebsten sofort oder in den nächsten Jahren. Nur: Bauland ist knapp. Sehr knapp. Mit zwölf neuen Bauplätzen in der »Elme IV« will die […]
Vereine bekommen Zuschuss für die Jugendarbeit
In seiner Sitzung am Montag gewährte der Gemeinderat Oberharmersbacher Vereinen Jugendförderung im gewohnten Umfang, insgesamt sind es im laufenden Jahr 9.588,98 Euro.
Bauanträge
Mit den zwei Bauvorhaben, die am Montag vorgestellt wurden, kann der Gemeinderat gut leben. Er erteilte sein Einvernehmen.